Heat treatment to preserve food products and beverages is a very ancient practice by humans. Whether the food and beverages we consume at home or in a restaurant, the challenge is to preserve them whole, from industrial packaging to end consumption.
With the invention of pasteurisation, the preservation of beverages was addressed successfully. As is the law of nature, when we move in one direction, other challenges are set to open the gate!
This is particularly true of pasteurisation technology, given the vast variety of beverages, their nutritional values, and their textures, tastes and flavours. A major revolution after World War I was when flash pasteurisation technology was introduced in 1933 to preserve milk.
Subsequently, this technology was adopted for other beverages, including fruit juices and fermented beer. The principle underlying the process is killing or denaturing the pathogenic microorganisms that lead to spoilage and toxicity.
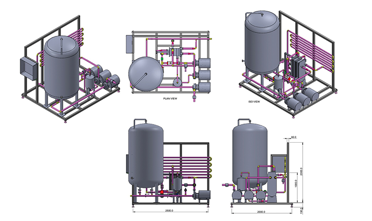
The flash pasteuriser is built under HTST (high temperature, short time) technology of pasteurisation. The heat treatment process involves a temperature of more than 72oC for about 10-20 seconds, depending on the beer style.
Flash pasteurisers are specifically designed for beer brewing because certain basic characteristics, such as taste, flavour and aroma, remain intact during the treatment. Especially in small-scale brewing entities like craft and micro-breweries, the challenges are even more complex, because they brew many styles of beer and utilise different styles of packaging.
The equipment is designed to maintain the beer temperature with flow rate and CO2 gas condition. Basically, it is designed as a shell-tube heat exchanger with a rapid cooling plate heat exchanger.
The heat exchanger is designed to maintain the beer temperature with desired parameters, such as 72-74oC, with a holding time of 10-20 seconds and cooling the beer to maintain 0oC with the carbonation process.
Calculating PU
The pasteurisation unit (PU) desired during this process is around 15-30 PU. The brewer here decides how much PU s/he needs to maintain for his/her product. The PU calculation: PU = t / 60 * 1.393 (T – 60). Here, “t” is the holding time (in seconds) and “T” is the product temperature (in degrees C) in the holding cell.
Brewers must consider the following key parameters while installing a flash pasteuriser:
- MOC of the flash pasteuriser
- Capacity of buffer tank
- Process flow
- CO2 content of the product
- Pasteurisation range
- Re-routing of the product with back-pressure valve
- Clean-in-place system
- Automation
- Utility consumption & energy recovery
There are many manufacturers or importers of flash pasteurisers. Based on market demand and technology advancement, currently Bengaluru-based SpectraA Technologies Solutions (www.spectraa.com) and Lumiere Technology (www.lumieretec.com) supply flash pasteurisers to several craft and micro-breweries. SpectraA is one of the leading OEMs supplying high-quality and value-for-money equipment for breweries in India and around the world.


